Casa Grecia
Casa Grecia.
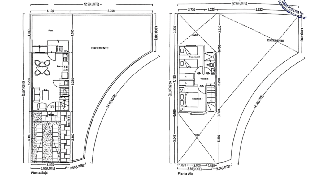
El inmueble cuenta con Terreno Excedente, lo que le da mayor plusvalía.
m2 de terreno
M2 DE CONSTRUCCIÓN
M2 EXCEDENTE
ESPECIFICACIONES
Habitaciones
- 2 Habitaciones
- 1 1/2 Baños
Fraccionamiento
- Acceso Controlado
- Guardias en el Desarrollo
Equipamiento
- Cocina Integral
- Protecciones en ventanas y puertas
- Calentador de Paso
- Extractor de olores en Baño
Ventajas
- Terreno Excedente
- Piso Cerámico en ambas plantas
- Patio Trasero
Amenidades
- El desarrollo cuenta con zonas verdes, deportivas y con Escuelas para tu mayor comodidad.
¿Tienes alguna pregunta?
No dudes en contactarnos
CONTACTO
- Zumpango, Edo. Méx. México
- 77 1431 3343
-
gconstructormg
@hotmail.com
























